View Small Cabin Floor Plan Pictures

Post a Comment

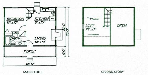
View Small Cabin Floor Plan Pictures. The number and size of them will drive your frame design/layout. Spread over 500 square feet, downstairs, you will find a living space, kitchen, and bathroom.

small cabin floor plans | Guest cottage | Pinterest
small cabin floor plans | Guest cottage | Pinterest from media-cache-ec0.pinimg.com
One of their models is the eagle microhome which has 350 square feet with a 50 square foot deck on the second. John murchie of murchtech consulting corp. Search our cozy cabin section for homes that are the perfect size for you and your family. Is building innovative tiny houses out of british columbia. Looking for a small cabin floor plan?

Browse to get inspiration, ideas, or a starting point for your custom timber or log home plan.

At battle creek log homes, our cabin series consists of small log cabins, each with their own unique cozy charm. While cedar is generally more expensive, it can last for more than 70 years and has a higher r rating. This free cabin plan outlines a 460 square foot structure, which is perfect for building within the confines of a small space and would make a great the plan includes roof and wall framing details, electrical plans, foundation and floor plans, and more. Here latest small cabin floor plans design collection. John murchie of murchtech consulting corp. It's much easier tackling a small project if you have limited time, space and money than.


Related Posts

There is no other posts in this category.

Post a Comment

Subscribe Our Newsletter